「防音室の真上の部屋で寝ていても気にならない」ご夫婦でいつでも楽しめる防音室
オーナー様はもともとご夫婦でファゴットやピアノを演奏されており、「夢のマイホームで気兼ねなく練習できる環境が欲しい」という思いから、防音室の計画が始まりました。
これまでは練習のたびにカラオケや練習室を借りる手間がありましたが、家を購入するタイミングに合わせて防音工事を決意されました。
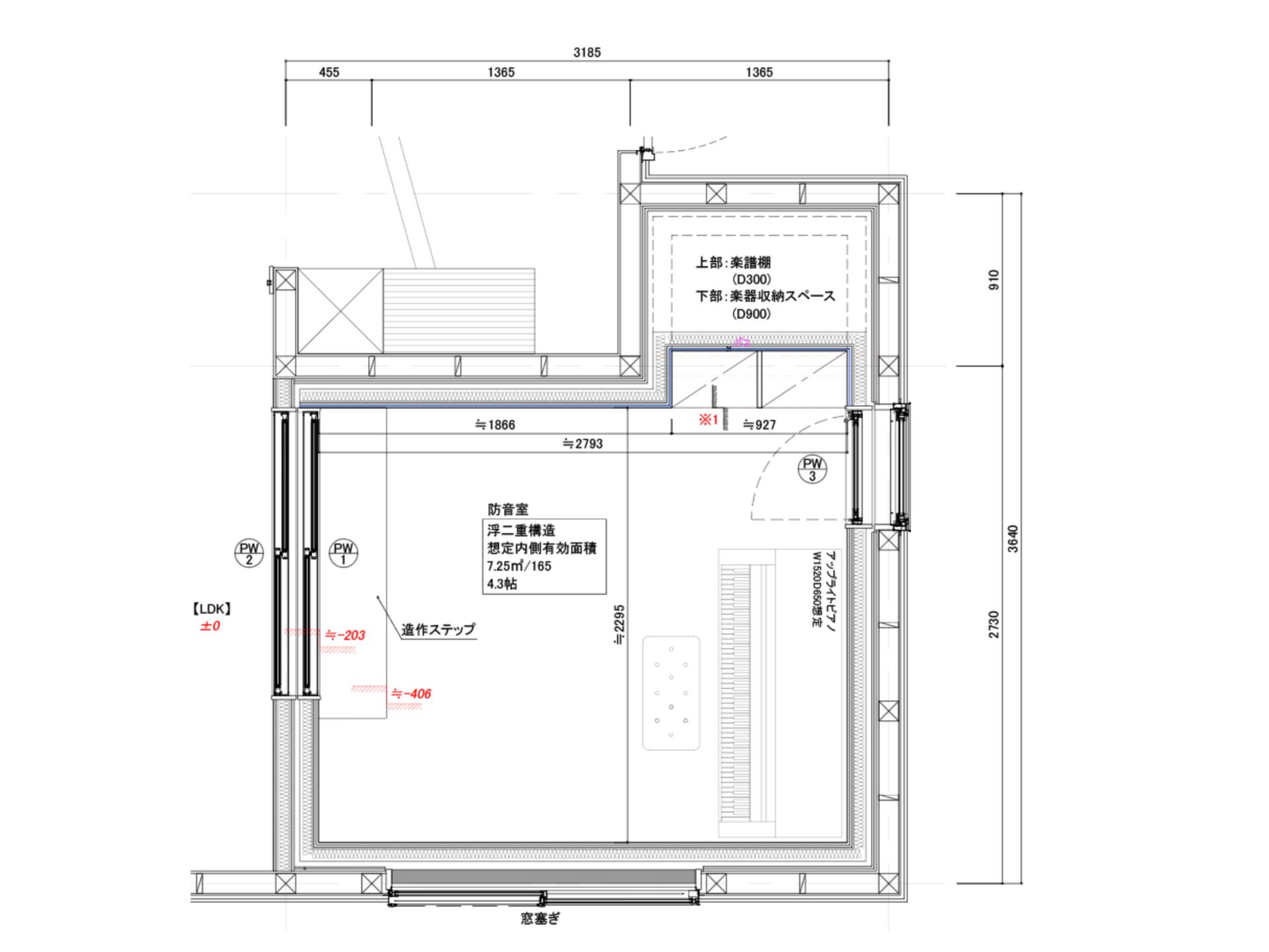
木造建築の2階建て、1階部分にある約6畳の和室を防音室にリフォームした施工事例です。
↑ナチュラルな雰囲気を大切にした空間。他の部屋と調和する内装の防音室が完成しました。
↑正面から見た様子。元々は収納を含め約6畳の和室でしたが、解体した上で約4.3帖の防音室を施工しました。
↑防音室の隣にはリビングが。お子さんがいるご家庭でも様子を見ながら演奏ができます。
楽器を楽しむため、使いやすさにこだわった防音室のポイントとは?
↑既存収納は解体し、楽譜や楽器を収納できるように新たな収納を造作しました。
↑収納上部の可動棚は奥行がD300、様々なサイズの楽譜に対応できるよう、可動棚となっています。
下部はファゴットのような長い楽器もケースごと収納できるよう、奥行をD900に設計しました。
↑既存窓に加え、PLASTの「内開き 防音合わせガラス」を採用。小さいながらも効率良く換気ができます。
↑吸音天井板は上階にも効果を発揮する吸音素材です。上階で寝ていても「音が気にならない」とオーナー様の喜びの声をいただきました。
↑防音室の大きな段差を解消する造作ステップ。床材とクロスを組み合わせて施工しました。
工事前・解体・工事中の様子をご紹介
↑工事前、現地調査を行った際の様子。床~天井、収納も含めて解体し、「防振・浮き二重構造」を造ります。
↑既存の和室には掃き出し窓がありました。駐車場が目の前だったため、資材の搬入に使用させていただきました。
↑工事箇所以外に傷が付いたり埃が飛ばないよう、養生を行います。毎工事後の掃除も徹底しています。
↑天井・床はともに解体し、防音構造を構築。収納スペースのみ一部空間をあけてあります。
完成時の様子
後日、アップライトピアノ搬入後のお写真を送っていただきました!
↑オーナー様にお送りいただきました!
アップライトピアノを搬入した後の写真です。DIYでタイルカーペットも敷かれたとのこと、季節や雰囲気によってレイアウトを変えられそうです。
ご計画プラン
防音室の仕様概要
| 用途 | ファゴット・アップライトピアノ演奏 |
|---|---|
| 施工時期 | 2025年10月中旬〜11月上旬(実働14日間) |
| 建物構造 |
木造戸建て1階和室 |
| 遮音性能 |
屋内に対してD45(開口部を除く) 外部に対してD60(開口部を除く) |
| 費用 | 約428万円(2025年11月時点) |
| 仕様 | 【天井】吸音天井材:ソーラトン 【床】防振床、合板フローリング 【壁】防音構造、クロス仕上 【開口部】防音ガラス二重インナーサッシ、内開きタイプ防音インナーサッシ 【換気】ダクトファン換気 |
※詳細仕様やお見積りはお問い合わせください。
